প্রভা

 LOCATION: NATUN BAZAR MYMENSINGH

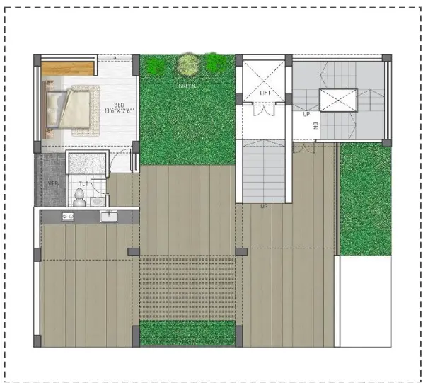
 LAND AREA: 3098 SFT

 NO OF UNITS/FLOOR: 01

 NO OF FLOOR: G+5

 UNIT AREA: 2080 SF

নতুন ভিশন ডুপ্লেক্স ভিলা